VENDE IMÓVEL COMERCIAL/RESIDENCIAL-GUARULHOS-JD BELA VISTA .
Rua BauruJardim Bela Vista, Guarulhos - SP

Informações
- Perfil: Usado
- Ano da Construção: 1990
- Aceita FinanciamentoSimular Financimento
Medidas
- Área Total: 143,11 m² (R$ 5.939/m²)
- Área Privativa: 143,11 m²
- Área Construída: 143,11 m²
- Terreno Área Total: 400 m²
Descrição
Excelente Imóvel no Jardim Bela Vista – Guarulhos
Para Uso Comercial ou Residencial
Venda
JARDIM BELA VISTA - GUARULHOS - SÃO PAULO.
EXCELENTE OPORTUNIDADE!!!!!!!
- Apresentamos uma ótima oportunidade no Jardim Bela Vista, um dos bairros mais tradicionais e bem localizados de Guarulhos. Situado na Rua Bauru, o imóvel está próximo ao Aeroporto Internacional de Guarulhos e conta com acesso facilitado às principais vias da região: Av. Otávio Braga de Mesquita, Av. Brigadeiro Faria Lima, Av. Jamil João Zarif e Rodovia Presidente Dutra.
Com terreno amplo e ambientes versáteis, esta propriedade é ideal tanto para instalação de comércio, escritório, clínica, serviços, quanto para moradia confortável.
- O IMÓVEL SE ENCONTRA DESOCUPADO.**************************************************************************************
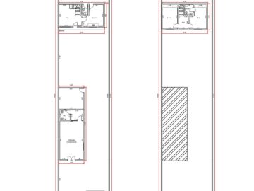
Detalhes do Imóvel
Terreno: 10 x 40 m (400 m²)
Ampla área construída
Casa sobrado.
Com 79,09 m2.
Distribuição dos Ambientes:
- Piso Inferior
Sala:
Cozinha:
Banheiro.
- Piso Superior
02 dormitórios
01 banheiro
OBS:
- EDIFICAÇÃO COMPLEMENTAR - TIPO GALPÃO - COM BANHEIRO.
Com 69,02m2 construídos.
Estacionamento amplo.
Vaga: 12 autos.
Ambientes amplos, bem distribuídos e adaptáveis às mais variadas finalidades.
- Diferenciais:
Documentação totalmente regular
Localização estratégica e de fácil acesso
Região de grande movimento e valorização
Ideal para quem busca praticidade, visibilidade e versatilidade
- Valores:
Venda: R$ 850.000,00
Seja para morar com conforto ou desenvolver seu negócio em um ponto estratégico, este imóvel oferece potencial, versatilidade e excelente negociação.
Entre em contato para mais informações!
Contate:
11-94728-5783
*S YOKOMIZO*
CONSULTOR e AVALIADOR IMOBILIÁRIO
CRECI: 152.132-F (KEN)
CNAI: 14.868







